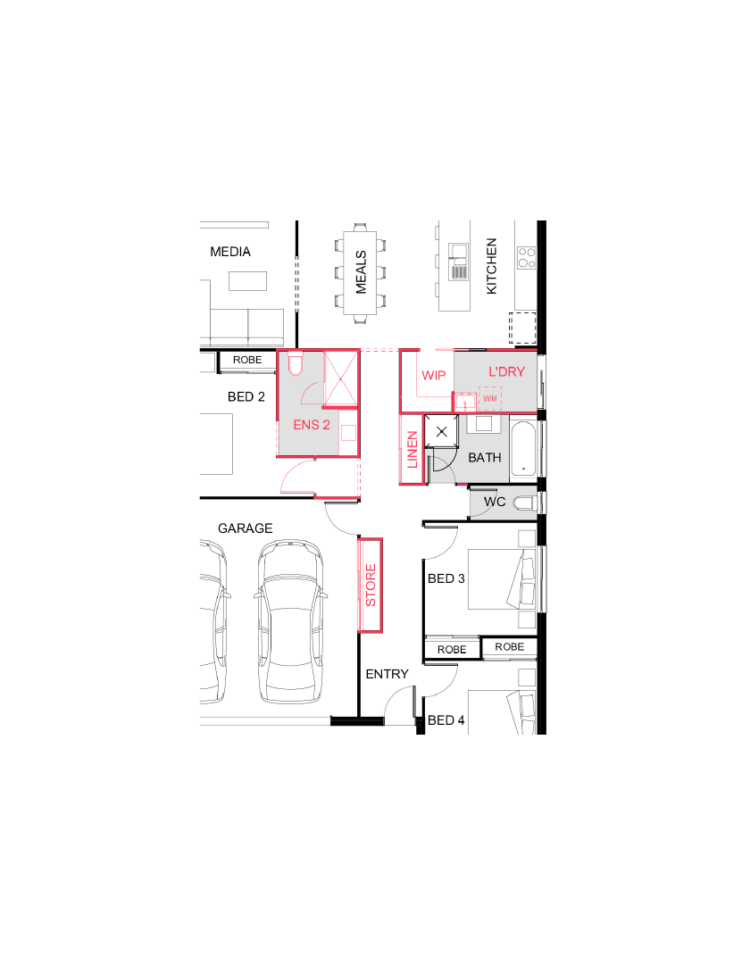
The spacious master bedroom, luxurious walk-in robe and oversized ensuite makes it the perfect retreat to escape to at the end of a busy day. With this four-bedroom house plan, the contemporary kitchen features a walk-in pantry conveniently connected to the laundry, while the living and meals area spills out onto a large alfresco. With a separate media room and versatile activity room, this gorgeous home leaves nothing to be desired.
As with all our Luma home designs, including the Cove 202 and the larger Cove 217, the Bronte 231 offers extensive façade options, including a range of modern Hamptons façades, like our popular Southampton façade with its wood panel features. These stunning façades combine the timeless aesthetics and material choices of Hampton homes with contemporary colour palettes to deliver a home with unparalleled curb appeal that lends itself perfectly to the Queensland climate and lifestyles. View the floor plan and façade selection below, and contact Hallmark Homes to learn more about this beautiful single-storey home!
| House Dimensions | |
|---|---|
| Min Block Width | 12.5m* |
| Floor Area sqm | 230.42m2 |
| Length | 22.40m |
| Width | 11.30m |
| Bedrooms | |
|---|---|
| Master Bedroom | 4.6m x 3.2m |
| Bedroom 2 | 3.3m x 3.0m |
| Bedroom 3 | 3.0m x 3.0m |
| Bedroom 4 | 3.0m x 3.0m |
| Living Areas | |
|---|---|
| Kitchen | 3.7m x 3.0m |
| Meals | 3.4m x 2.3m |
| Living | 5.3m x 3.8m |
| Media | 3.5m x 3.4m |
| Activity | 3.9m x 2.7m |
| Outdoor | |
|---|---|
| Alfresco | 5.3m x 3.0m |
| Garage | 6.0m x 5.8m |
Thank you for your enquiry, a consultant will contact you within three business days.
Processing
Processing
Provide your details to receive a copy of the brochure in your inbox.
Thank you, the brochure has downloaded and has been emailed to you. You can also download it here.
Please get in touch, if you'd like any help with you new home.
Processing
Fill out the form below and a sales consultant will contact you to confirm your appointment.
A sales consultant will contact you soon to schedule an appointment on your selected day.
Processing